Пособие по строительству дома [Иван Александрович Дурягин] (fb2) читать онлайн

- Пособие по строительству дома [СИ] 23.09 Мб, 44с. скачать: (fb2) - (исправленную)  читать: (полностью) - (постранично) - Иван Александрович Дурягин

 [Настройки текста]  [Cбросить фильтры]
  [Оглавление]

Иван Дурягин Пособие по строительству дома


Одноквартирный жилой дом

с жилым помещением в мансардной части

Пояснительная записка

ПЗ 19-01


Архангельск 2019






Нормативные ссылки

1) СП 131.13330.2012 «Строительная климатология»;

2) СП 50.13330.2012 «Тепловая защита зданий»;

3) СП 118.13330.2012 «Общественные здания и сооружения»;

4) СП 22.13330.2016 «Основания зданий и сооружений»;

5) СП 63.13330.2018 «Бетонные и железобетонные конструкции»;

6) СП 25.13330.2012 «Основания и фундаменты на вечномёрзлых грунтах»;

7) ГОСТ Р 57361-2016 «Фундаменты зданий. Теплотехнический расчет»;

8) ГОСТ 30974-2002 «Соединения угловые деревянных брусчатых и бревенчатых малоэтажных зданий. Классификация, конструкция, размеры»;

9) ГОСТ 30494-2011 «Здания жилые и общественные»;

10) СП 64.13330.2017 «Деревянные конструкции».

(обратно)

Введение

Данное пособие составлено в виде проекта одноквартирного жилого дома с жилым помещением в мансардной части. Проект дома является реальным. Он был успешно воплощён в жизнь за год до составления пособия.

Цель разработки пособия – описать основные узлы деревянных конструкций, использующиеся при строительстве малоэтажных жилых домов с брусовыми стенами; дать необходимую информацию людям, намеревающимся начать строительство собственного малоэтажного жилого дома с брусовыми стенами (самостоятельно или с привлечением сторонних организаций), но не имеющим достаточного опыта в строительстве.

Пособие разделено на 3 части.

Первая часть – «Пояснительная записка». В ней описаны все технические и технологические решения, принятые в ходе строительства данного дома. В записке представлены некоторые расчёты, произведённые в ходе проектирования. Расчёты затрагивают следующие вопросы:

– выбор глубины заложения фундамента;

– расчёт утепления грунта при заложении подошвы фундамента выше глубины промерзания грунтов;

– подбор толщины утепляющего слоя ограждающих конструкций;

– расчёт пиломатериалов без остатка.

Математические выкладки, применяющиеся в расчётах, довольно просты и не выходят за рамки курса математики 9-го класса.

Вторая часть – «Архитектурно-строительные решения». Здесь представлены чертежи дома на разных этапах строительства.

Третья часть – «Конструктивные решения». В ней более подробно рассматриваются чертежи отдельных конструкций дома, участков соединения конструкций, показано положение элементов в готовых конструкциях.

(обратно)

1. Исходные данные

1.1 Назначение здания

Спроектированный жилой дом предназначен для проживания в летнее время. Для круглогодичного проживания необходимо дополнительно утеплить стены со стороны улицы. Толщина утеплителя подбирается исходя из климатических условий региона строительства в соответствии с требованиями СП 131.13330.2012 «Строительная климатология».

Подбор толщины утеплителя для стен, перекрытия пола 1-го этажа и крыши рассмотрен в пунктах 3.2, 3.3 и 3.4 настоящего пособия соответственно.

(обратно)

1.2 Инженерно-геологические условия площадки строительства

В данном пособии рассматривается случай, когда грунт основания на площадке строительства представлен однородным слоем тугопластичного суглинка мощностью 5 м. Грунтовые воды залегают на глубине 0,3 – 0,5 м от поверхности земли.

(обратно)

1.3 Климатические условия района строительства

Климатические параметры района строительства необходимо знать для подбора толщины слоя утеплителя в стенах, крыше и перекрытии пола 1-го этажа.

Климатические параметры района строительства определяются по таблице 3.1, СП 131.13330.2012 «Строительная климатология», а так же по карте приложения «В», СП 50.13330.2012 «Тепловая защита зданий». Более полное представление о климатических параметрах района строительства можно получить, из карт приложения «А» СП 131.13330.2012 «Строительная климатология».

Рассматриваемый район строительства (г. Архангельск) характеризуется следующими климатическими параметрами:

– температура воздуха наиболее холодной пятидневки, обеспеченностью 0,92: – 33оС;

– продолжительность периода со средней суточной температурой воздуха ≤ 8оС: 250 сут.;

– средняя температура воздуха периода со средней суточной температурой воздуха ≤ 8оС: – 4,5оС;

– зона влажности: влажная.

(обратно) (обратно)

2 Архитектурно-строительные решения

2.1 Технико-экономические показатели объекта строительства

Технико-экономические показатели объекта строительства необходимо знать для получения разрешения на строительство в соответствующем территориальном органе исполнительной власти. Основанием для определения технико-экономических показателей здания являются строительные чертежи.

Технико-экономические показатели, приведённые в данном разделе, определяются согласно приложению «Г» СП 118.13330.2012 «Общественные здания и сооружения». Значения показателей представлены в таблице 2.1.

Таблица 2.1 – Технико-экономические показатели объекта


(обратно)

2.2 Объёмно-планировочные решения

Вход в здание осуществляется со стороны фасада 1-3. Для этого устраивается лестница, примыкающая к веранде. Так же имеется возможность устроить дополнительные лестницы со стороны фасадов А-Г и Г-А, примыкающие к веранде.

Первый этаж целиком является кухней-гостиной. Имеется возможность устройства санузла, выделив его из общего объёма этажа гипсокартонными перегородками.

Мансардный этаж отводится для размещения одной или двух спален. При необходимости устройства двух спален имеется возможность отделить помещения друг от друга гипсокартонными перегородками.

Первый и второй этажи сообщаются друг с другом посредством раздвижной лестницы. Раздвижная лестница устраивается в люке в перекрытии между 1-ым и мансардным этажами.

Отопление дома – печное. Для этого на 1-ом этаже устанавливается металлическая дровяная печь.

Электроснабжение – от существующих сетей.

Водоснабжение и водоотведение, а так же отведение канализационных стоков в проекте не предусмотрено.

(обратно) (обратно)

3 Конструктивные решения

3.1 Фундаменты

В данном пособии рассматривается вариант устройства точечных монолитных фундаментов мелкого заложения. Такой тип фундамента был выбран из-за невозможности подъезда на стройплощадку крупной строительной техники для устройства забивного свайного или монолитного ленточного фундамента.

Преимуществами такого типа фундамента являются:

– простота изготовления конструкций и более низкая стоимость, по сравнению с ленточным и плитным фундаментами;

– процесс возведения такого фундамента безопасен для окружающей застройки и возможен без использования крупной строительной техники, по сравнению со свайным фундаментом на забивных железобетонных сваях;

– такой фундамент меньше подвержен коррозии по сравнению со свайным фундаментом на винтовых сваях;

Из минусов стоит отметить:

– зависимость работ от погоды: бетонирование конструкций такого фундамента должно осуществляться при температуре ≥ +5оС, кроме того в период набора прочности бетона (28 суток) температура не должна опускаться ниже 0оС;

– невозможность устройства такого фундамента в случае, когда грунты на площадке строительства представлены илами, торфами, глинистыми грунтами мягкопластичными, текучепластичными и текучими (с показателем текучести IL ≥ 0,6), а так же рыхлыми песками;

– необходимость заложения подошвы фундамента на глубине промерзания грунта (или ниже глубины промерзания), либо трудоёмкая грунтовая подготовка в случае, когда строительство осуществляется на пучинистых грунтах. К пучинистым грунтам относятся: пески мелкие и пылеватые; супеси; суглинки, глины и крупнообломочные грунты с глинистым заполнителем.

Примечания:

1) Продолжительность периода набора прочности бетона зависит от температуры окружающего воздуха (см. «Графики набора прочности бетона в зависимости от температуры»). Общепринятым является значение 28 суток при температуре окружающего воздуха t = +15оС.

2) Пучинистый грунт – грунт, подверженный морозному пучению.

3) Морозное пучение – увеличение в объёме водонасыщенного грунта при его промерзании. Если при возведении фундаментов на пучинистых грунтах не принять меры по предотвращению воздействия морозного пучения на фундамент, это может привести к неравномерному подъёму фундаментов при промерзании грунта; к неравномерным осадкам фундаментов при оттаивании грунта.

В данном пособии рассматривается случай строительства на пучинистом грунте, когда грунтовые воды залегают на глубине 0,3 – 0,5 м от поверхности земли.

При строительстве на пучинистых грунтах проводятся мероприятия по условиям недопущения морозного пучения грунта основания в соответствии с п. 5.5.5 СП 22.13330.2016 «Основания зданий и сооружений».

Согласно п. 5.5.5 СП 22.13330.2016 «Основания зданий и сооружений» глубина заложения наружных фундаментов отапливаемых зданий назначается по следующей таблице:

Таблица 3.1 – Глубина заложения наружных фундаментов отапливаемых зданий



Рассмотрим 3 варианта устройства фундаментов для данных грунтовых условий:

А) Фундамент на буронабивных сваях, когда конец сваи находится на расчётной глубине промерзания грунта;

Б) Фундамент мелкого заложения с выполнением грунтовой подготовки;

В) Фундамент мелкого заложения с утеплением грунта.

(обратно)

3.1.1 Вариант «А» – Фундамент на буронабивных сваях

Общий вид фундамента на буронабивных сваях приведён в таблице 3.5 настоящего пособия.

Технология устройства одного фундамента следующая:

– откапывается шурф (яма) или бурится скважина до глубины, превышающей расчётную глубину промерзания грунта на величину щебёночной подготовки;

– на дно скважины (шурфа) засыпается щебень до расчётной глубины промерзания грунта (как правило мощность щебёночная подготовка составляет 10 – 20 см);

– в скважину (шурф) помещается опалубка – конструкция, которая формирует тело будущей сваи;

– отверстие внизу опалубки предварительно закрывается геомембраной типа «Технониколь – Planter» для предотвращения ухода влаги из бетонной смеси в землю;

* при использовании дощатой или фанерной опалубки на стенки опалубки c внутренней стороны крепится полиэтиленовая плёнка для предотвращения ухода влаги из бетонной смеси в щели, а так же в материал опалубки;

– осуществляется выверка положения опалубки, после чего производится обратная засыпка с трамбовкой объёма скважины (шурфа) вокруг опалубки вынутым ранее грунтом;

– в опалубку вставляется арматурный каркас;

– в опалубку с арматурным каркасом заливается бетонная смесь;

* при заливке бетонную смесь необходимо вибрировать глубинным вибратором послойно через каждые 0,5 м;

– производится распалубка видимой части фундамента;

– выполняется гидроизоляция фундамента.

Подбор габаритов сваи и расчёт сваи по прочности осуществлялся вручную согласно СП 63.13330.2018 «Бетонные и железобетонные конструкции» и в данном пособии не приводится.

Проверка основания по несущей способности при выбранных габаритах фундамента проводилась вручную в соответствии с СП 22.13330.2016 «Основания зданий и сооружений» и в данном пособии не приводится.

Стоит отметить, что двенадцати свай сечением 40×40 см, армированных продольно четырьмя стержнями диаметром 6 мм; армированных поперечно хомутами (или стержнями) диаметром 6 мм с шагом 15 см, достаточно для восприятия нагрузок, передающихся на фундамент от всех конструкций данного дома, людей и мебели, находящихся в нём, а так же снега, который лежит на крыше в зимнее время; и для передачи этой нагрузки на грунт основания при данных грунтовых условиях.

Рассмотрим определение глубины заложения конца сваи. Определение глубины заложения конца сваи производится в соответствии с СП 22.13330.2016 «Основания зданий и сооружений».

1) Определим нормативную глубину сезонного промерзания грунта dfn:


dfn = d0 · (Mt)1/2                                                       (3.1)


где Mt – сумма абсолютных значений среднемесячных температур за год в районе строительства. Mt определяется по таблице 5.1 СП 131.13330.2011 «Строительная климатология»;

d0 – величина, принимаемая равной: для суглинков и глин 0,23 м; супесей, песков мелких и пылеватых – 0,28 м; песков гравелистых, крупных и средней крупности – 0,30 м; крупнообломочных грунтов – 0,34 м.


Для нашего случая:

Mt = 13,6 + 12,1 + 5,7 + 4,8 + 9,9 = 46,1

d0 = 0,23 м

dfn = 0,23 · (46,1)1/2 = 1,56 м

2) Определим расчётную глубину сезонного промерзания грунта df:


df = dfn · kh                                                             (3.2)


где kh – коэффициент, учитывающий влияние теплового режима помещения. Коэффициент kh можно определить по таблице 3.2 настоящего пособия.


Таблица 3.2 – Определение коэффициента kh





В нашем случае коэффициент kh можно принять равным 1,0.

Тогда:

df = 1,56 · 1,0 = 1,56 м

Глубина заложения подошвы фундамента составляет 1,56 м.

3) Определим глубину, на которую следует производить отрывку шурфа (бурение скважины):


Dшурф = df + hщ,                                                             (3.3)


где Dшурф – глубина, на которую следует производить отрывку шурфа (бурение скважины);

hщ – высота щебёночной подготовки, принимаемая равной 10…20 см.


Dшурф = 1,56 + 0,20 = 1,76 м

(обратно)

3.1.2 Вариант «Б» – Фундамент мелкого заложения с выполнением грунтовой подготовки

В данном случае для исключения влияния морозного пучения на фундамент рассматривается способ замены пучинистого грунта на непучинистый. Общий вид фундамента мелкого заложения с выполнением грунтовой подготовки приведён в таблице 3.5 настоящего пособия.

Технология устройства одного фундамента следующая:

– откапывается шурф (яма) до глубины, определяемой расчётом;

– по дну и стенкам шурфа укладывается геотекстиль в один слой;

– в шурф засыпается песок до уровня, установленного расчётом, с послойной трамбовкой и проливкой водой через каждые 30…50 см;

– по верху песчаной засыпки укладывается геотекстиль в один слой;

– по геотекстилю производится щебёночная подготовка толщиной 10…20 см;

– по верху щебня укладывается геомембрана типа «Технониколь – Planter» для предотвращения ухода влаги из бетонной смеси в щебень;

– на геомембрану устанавливается опалубка;

* при использовании дощатой или фанерной опалубки на стенки опалубки с внутренней стороны крепится полиэтиленовая плёнка для предотвращения ухода влаги из бетонной смеси в щели и в материал опалубки;

– в опалубку вставляется арматурный каркас;

– в опалубку с арматурным каркасом заливается бетонная смесь;

* при заливке бетонную смесь необходимо вибрировать глубинным вибратором послойно через каждые 0,5 м;

– по истечении 3-х суток с момента бетонирования производится распалубка фундамента;

– производится гидроизоляция фундамента.

Подбор габаритов фундамента и расчёт по прочности выполнялся вручную согласно СП 63.13330.2018 «Бетонные и железобетонные конструкции» и в данном пособии не приводится.

Проверка основания по несущей способности при выбранных габаритах фундамента проводилась вручную в соответствии с СП 22.13330.2016 «Основания зданий и сооружений» и в данном пособии не приводится.

Стоит отметить, что двенадцати фундаментов мелкого заложения с габаритами плитной части (Д×Ш×Т) 1×1×0,15 м, и габаритами стойки (Д×Ш×В) 0,4×0,4×0,6 м, армированных стержнями диаметром 6 мм (схема армирования приведена в части КР, Лист 1), достаточно для восприятия нагрузок, передающихся на фундамент от всех конструкций данного дома, людей и мебели, находящихся в нём, а так же снега, который лежит на крыше в зимнее время; и для передачи этой нагрузки на грунт основания при данной грунтовой подготовке и данных грунтовых условиях.

Рассмотрим определение глубины отрывки шурфа. Определение глубины отрывки шурфа производится в соответствии с СП 22.13330.2016 «Основания зданий и сооружений».

1) Глубина отрывки шурфа складывается из высоты песчаной засыпки, высоты щебёночной подготовки и высоты плитной части фундамента:


Dшурф = hп + hщ + hпл                                                 (3.4)


где hп – высота песчаной подготовки;

hщ – высота щебёночной подготовки, принимается равной 10…20 см;

hпл – высота плитной части фундамента, равна 15 см.


2) Высота песчаной засыпки, необходимой для исключения влияния сил морозного пучения на фундамент равняется нормативной глубине промерзания песка в условиях региона строительства и определяется оп формулам 3.1 – 3.2 настоящего пособия.

Mt = 13,6 + 12,1 + 5,7 + 4,8 + 9,9 = 46,1

d0 = 0,30 м

dfn = 0,30 · (46,1)1/2 = 2,04 м

hп = df = 2,04 · 1,0 = 2,04 м

Dшурф = 2,04 + 0,2 + 0,15 = 2,39 м

Примечания:

1) Глубину отрывки шурфа Dшурф необходимо сравнивать с нормативной глубиной промерзания грунта основания dfn. Если Dшурф < dfn, то глубину отрывки шурфа увеличивают до нормативной глубины промерзания грунта основания. В данном случае dfn = 1,56 м (см. Вариант «А»).

2) Одно из основных условий при проектировании фундамента мелкого заложения – величина заглубления фундамента в грунт основания должна составлять не менее 0,5 м. В данном случае заглубление фундамента производится на толщину его плитной части, равную 0,15 м. Опыт строительства по данному проекту показал, что в данных грунтовых условиях, при отсутствии угрозы затопления участка поверхностными водами, заглубление фундамента лишь на толщину его плитной части не оказывает негативного влияния на работу конструкций фундамента.

(обратно)

3.1.3 Вариант «В» – Фундамент мелкого заложения с утеплением грунта

В данном случае для исключения влияния морозного пучения на фундамент рассматривается способ утепления грунта основания. Общий вид фундамента мелкого заложения с утеплением грунта основания приведён в таблице 3.5 настоящего пособия.

Технология устройства одного фундамента следующая:

– откапывается небольшой котлован до заданной глубины, габаритами определёнными расчётом;

– производится трамбовка грунта на дне котлована (возможно устройство песчаной подушки на дне котлована с последующей трамбовкой);

– по дну и стенкам котлована укладывается геотекстиль в один слой;

– на дно котлована укладывается утеплитель (экструдированный пенополистирол) толщиной, определённой расчётом;

– по верху утеплителя устанавливается опалубка;

* при использовании дощатой или фанерной опалубки на стенки опалубки с внутренней стороны крепится полиэтиленовая плёнка для предотвращения ухода влаги из бетонной смеси в щели и в материал опалубки;

– в опалубку вставляется арматурный каркас;

– в опалубку с арматурным каркасом заливается бетонная смесь;

* при заливке бетонную смесь необходимо вибрировать глубинным вибратором послойно через каждые 0,5 м;

– по истечении 3-х суток с момента бетонирования производится распалубка фундамента;

– производится гидроизоляция фундамента;

– производится обратная засыпка котлована вынутым ранее грунтом до уровня земли.

Подбор габаритов фундамента и расчёт по прочности выполнялся вручную согласно СП 63.13330.2018 «Бетонные и железобетонные конструкции» и в данном пособии не приводится.

Проверка основания по несущей способности при выбранных габаритах фундамента проводилась вручную в соответствии с СП 22.13330.2016 «Основания зданий и сооружений» и в данном пособии не приводится.

Стоит отметить, что двенадцати фундаментов мелкого заложения с габаритами плитной части (Д×Ш×Т) 1×1×0,15 м, и габаритами стойки (Д×Ш×В) 0,4×0,4×0,85 м, армированных стержнями диаметром 6 мм (схема армирования приведена в части КР, Лист 1), достаточно для восприятия нагрузок, передающихся на фундамент от всех конструкций данного дома, людей и мебели, находящихся в нём, а так же снега, который лежит на крыше в зимнее время; и для передачи этой нагрузки на утеплитель и в последующем на грунт основания при данной грунтовой подготовке и данных грунтовых условиях.

Рассмотрим определение габаритных размеров утеплителя, а так же определение габаритов шурфа. Определение габаритных размеров утеплителя производится в соответствии с ГОСТ Р 57361-2016 «Фундаменты зданий. Теплотехнический расчет».

1) Определение габаритных размеров утеплителя производится по таблицам ГОСТ Р 57361-2016 «Фундаменты зданий. Теплотехнический расчет», зная проектный индекс промерзания грунта Fп. Для того, чтобы определить проектный индекс промерзания грунта Fп, сначала определим индекс промерзания грунта для одной зимы F1:


F1 = 24∑(0 – <t<0сут>),                                                 (3.5)


где <t<0сут> – средняя за сутки температура уличного воздуха в зимний период для данного региона строительства.


Примечание:

В данной формуле производится суммирование абсолютных значений средних суточных температур всех дней одной зимы. Зимой в данном случае считается период, когда температура уличного воздуха устойчиво держится ниже отметки 0оС.

Воспользуемся приближённой формулой для определения индекса промерзания грунта для одной зимы F1:


F1 = 24∑(n<0 · <t<0мес>),                                                 (3.6)


где <t<0мес> – абсолютное значение среднемесячной температуры уличного воздуха в зимний период для данного региона строительства;

n<0 – число дней в месяце, средняя температура за который ниже отметки 0оС для данного региона строительства.


Примечание:

Абсолютное значение среднемесячной температуры уличного воздуха в зимний период t<0мес определяется по таблице 5.1, СП 131.13330.2012 «Строительная климатология».

Для данного региона строительства (г. Архангельск) согласно таблице 5.1, СП 131.13330.2012 «Строительная климатология» зимним периодом являются месяцы I, II, III, XI, XII. Тогда индекс промерзания грунта для одной зимы F1 по приближённой формуле будет определяться следующим образом:

F1 = 24 · (31 · 13,6 + 28 · 12,1 + 31 · 5,7 + 30 · 4,8 + 31 · 9,9) = 33312 оК · ч

2) Деревянный дом является податливой конструкцией, которая может претерпевать некоторые перемещения фундаментов, поэтому согласно ГОСТ Р 57361-2016 «Фундаменты зданий. Теплотехнический расчет» проектный индекс промерзания грунта Fп определяется на основании индексов промерзания грунта минимум за 10 зим. При расчёте по приближённой формуле не возможно определить индексы промерзания грунта для десяти зим, поэтому в качестве Fп принимается ранее определённый индекс F1, равный 33312 оК · ч.

3) Определяем ширину теплоизоляции грунта bg (см. рисунок в таблице 3.5 настоящего пособия), руководствуясь таблицей 3.3:

Таблица 3.3 – Ширина теплоизоляции грунта в зависимости от проектного индекса промерзания грунта



Поскольку в нашем случае Fп занимает промежуточное значение в таблице, то для определения ширины теплоизоляции грунта bg воспользуемся методом линейной интерполяции:

bg = 2,00 – [(40000 – 33312) · (2,00 – 1,60)]/(40000 – 30000) = 1,73 м

Принимаем ширину теплоизоляции bg, равную 1,75 м.

4) Определяем минимальное сопротивление теплопередаче для утепляющего слоя Rg, руководствуясь таблицей 3.4. Минимальное сопротивление теплопередаче Rg необходимо знать для определения толщины утеплителя.


Таблица 3.4 – Минимальное сопротивление теплопередаче для утепляющего слоя в зависимости от проектного индекса промерзания грунта и среднегодовой температуры наружного воздуха



В нашем случае среднегодовая температура наружного воздуха <tгод> = +1,0оС.

Поскольку Fп занимает промежуточное значение в таблице, то для определения минимального сопротивления теплопередаче утепляющего слоя Rg, воспользуемся методом линейной интерполяции:

Rg = 4,5 – [(40000 – 33312) · (4,5 – 3,5)]/(40000 – 30000) = 3,83 м2 · оК/Вт

Примечание:

Если значение среднегодовой температуры наружного воздуха так же занимает промежуточное положение, то необходимо воспользоваться методом двойной интерполяции. Сначала методом линейной интерполяции определить значения Rg для данной <tгод> (составив два аналогичных уравнения), затем определить значение Rg для данного Fп (составив одно уравнение).

5) Определяем толщину слоя утеплителя tут, м:


tут = λ · Rg                                                             (3.7)


где tут – толщина слоя утеплителя, м;

λ – теплопроводность материала утепляющего слоя, Вт/(м ∙ оК).


В качестве утеплителя применяются плиты экструдированного пенополистирола, для которых λ = 0,031 Вт/(м ∙ оК) (в условиях эксплуатации конструкций Б).

В общем случае теплопроводность утеплителя определяется по данным приложения «Т», СП 50.13330.2012 «Тепловая защита зданий».

Тогда толщина слоя утеплителя для нашего случая будет равна:

tут = 0,031 · 3,83 = 0,12 м

Принимаем толщину утеплителя 0,15 м.

Проверка утеплителя по прочности на сжатие, при восприятии нагрузок от конструкций фундамента в данном пособии не рассматривается.

Сравнение вариантов устройства фундаментов приведено в таблице 3.5.

Окончательно был принят вариант устройства фундамента мелкого заложения с выполнением грунтовой подготовки (Вариант «Б»).


Таблица 3.5 – Сравнение вариантов устройства фундаментов




(обратно) (обратно)

3.2 Стены

Материал стен дома – сосновый брус сечением 150×150 мм. Между брусьями, а так же в угловых стыках брусьев проложен утеплитель – джутовое полотно, которое крепится к брусьям с помощью строительного степлера. Друг с другом соседние венцы скрепляются с помощью нагелей-коксов диаметром 25…30 мм. Нагели проходят через 2 венца. Нагели лучше изготавливать из берёзовой древесины, но допустимо использовать и сосну. Пример расположения нагелей в глухом участке стены представлен на рисунке 3.1.




Рисунок 3.1 – Расположение нагелей в глухом участке стены


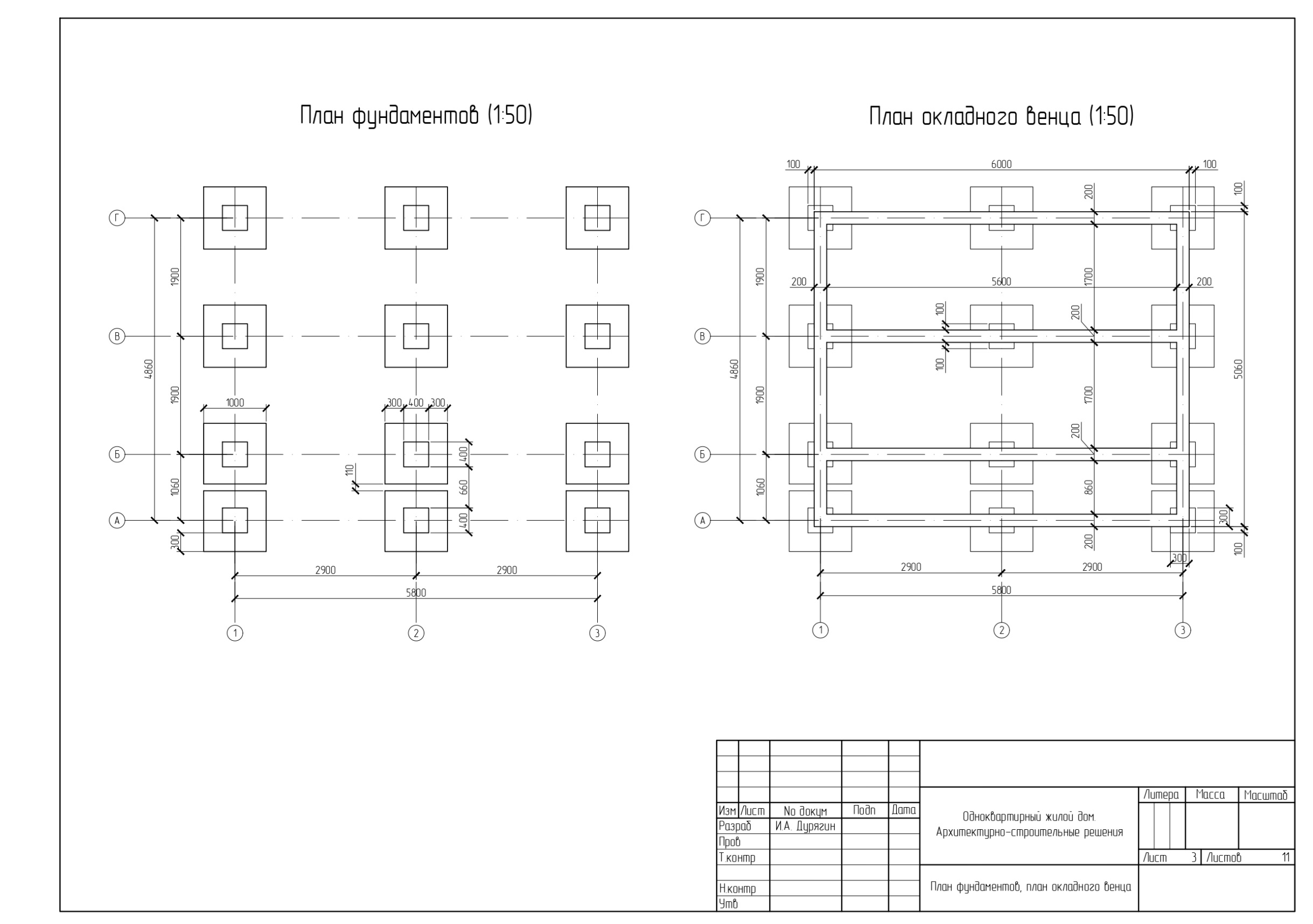
Брус венца №24 выдаётся на 325 мм за плоскости стен по осям 1 и 3 для опирания в этих местах на него крайних стропильных ног. Стены воспринимают нагрузку от вышележащих конструкций и передают её на фундамент через окладной венец.

Окладной венец состоит из двух венцов, выполненных из соснового бруса сечением 200×200 мм. К фундаменту окладной венец крепится с помощью арматурных стержней гладкого профиля, замоноличенных в стойки фундамента.

Объём веранды сформирован четырьмя стойками, подпирающими прогон веранды. К окладному венцу стойки крепятся с помощью арматурных стержней гладкого профиля. Прогон веранды передаёт нагрузку от конструкций крыши на стойки посредством компенсаторов усадки сруба (винтовых домкратов). Кроме того, прогон веранды уложен на выпуски бруса венца №17, которые выдаются на 1085 мм за плоскость стены по оси Б. Стойки и прогон веранды выполнены из соснового бруса сечением 150×150 мм. Сам прогон выдаётся на 325 мм за плоскости стен по осям 1 и 3 для опирания крайних стропильных ног.

Соединения бруса спроектированы в соответствии с требованиями ГОСТ 30974-2002 «Соединения угловые деревянных брусчатых и бревенчатых малоэтажных зданий. Классификация, конструкция, размеры».

Определение количества пиломатериалов для возведения стен представлено в таблице 3.6.

Данные для определения представлены на рисунке 3.2.








Рассмотрим теплотехнический расчёт стен для определения толщины слоя утеплителя. Утепление стен производится со стороны улицы. В качестве утеплителя используются минераловатные полужёсткие плиты. Использование утеплителей типа пенопласта или экструдированного пенополистирола не допускается из-за практически нулевой паропроницаемости материала, а так же из-за выделения вредных веществ при горении.

Исходные данные:

– температура внутреннего воздуха: tв = +20оС;

– влажность внутреннего воздуха: φв = 65%;

– влажностный режим помещения: влажный (по таблице 1, СП 50.13330.2012 «Тепловая защита зданий»);

– зона влажности: влажная (по карте приложения «В», СП 50.13330.2012 «Тепловая защита зданий»);

– условия эксплуатации ограждающих конструкций: Б (по таблице 2, СП 50.13330.2012 «Тепловая защита зданий»);

– температура воздуха наиболее холодной пятидневки, обеспеченностью 0,92: – 33оС (по таблице 3.1, СП 131.13330.20112 «Строительная климатология»);

– продолжительность периода со средней суточной температурой воздуха ≤ 8оС: zот = 250 сут. (по таблице 3.1, СП 131.13330.20112 «Строительная климатология»);

– средняя температура воздуха периода со средней суточной температурой воздуха ≤ 8оС: tот = -4,5оС (по таблице 3.1, СП 131.13330.20112 «Строительная климатология»).

Конструкция стены изнутри-наружу приведена на рисунке 3.3 и в таблице 3.8. Нумерация элементов стены на рисунке и в таблице совпадает.




1) Определяем нормируемое значение приведенного сопротивления теплопередаче ограждающей конструкции (т.е. стены), R0норм, (м2оС)/Вт, определяем по формуле 3.8:


R0норм = R0тр ∙ mр,                                                       (3.8)


где R0тр – базовое значение требуемого сопротивления теплопередаче ограждающей конструкции, (м2оС)/Вт, принимается в зависимости от градусо-суток отопительного периода региона строительства, (ГСОП), оС ∙ сут/год;

mр – коэффициент, учитывающий особенности региона строительства. В расчете по формуле (3.8) принимается равным 1.


2) Определяем градусо-сутки отопительного периода, оС ∙ сут/год, по формуле 3.9:


ГСОП = (tв – tот) ∙ zот,                                                 (3.9)


где tот, zот – средняя температура наружного воздуха, оС, и продолжительность, сут/год, отопительного периода, принимаемые по таблице 3.1, СП 131.13330.2012 «Строительная климатология» для периода со среднесуточной температурой наружного воздуха не более 8 оС;

tв – расчетная температура внутреннего воздуха, оС, принимаемая по ГОСТ 30494-2011 «Здания жилые и общественные» (в интервале +20…+22 оС).


ГСОП = (20 – (-4,5)) ∙ 250 = 6125 оС ∙ сут/год

3) Определяем значение требуемого сопротивления теплопередаче ограждающей конструкции, (м2оС)/Вт, по формуле 3.10:


R0тр = а ∙ ГСОП + b,                                                 (3.10)


где ГСОП – градусо-сутки отопительного периода, оС ∙ сут/год;

а, b – коэффициенты, значения которых принимаются по данным таблицы 3, СП 50.13330.2012 «Тепловая защита зданий».


R0тр = 0,00035 ∙ 6125 + 1,4 = 3,54 (м2оС)/Вт

Нормируемое значение приведенного сопротивления теплопередаче стены определяем по формуле 3.8:

R0норм = 3,54 ∙ 1 = 3,54 (м2оС)/Вт

4) Определяем условное сопротивление теплопередаче ограждающей конструкции, (м2оС)/Вт, по формуле 3.11:


R0усл = 1/αв + ∑i=1…n (Ri + 1/αн),                                     (3.11)


где αв – коэффициент теплоотдачи внутренней поверхности ограждающей конструкции, Вт/(м2оС), принимаемый согласно таблице 4, СП 50.13330.2012 «Тепловая защита зданий»;

αн – коэффициент теплоотдачи наружной поверхности ограждающей конструкции, Вт/(м2оС), принимаемый согласно таблице 6 СП 50.13330.2012 «Тепловая защита зданий»;

Ri – термическое сопротивление однородного слоя ограждающей конструкции, (м2оС)/Вт.


Примечание:

При определении условного сопротивления теплопередаче стены слои, идущие за вентилируемой воздушной прослойкой (при рассмотрении конструкции стены изнутри-наружу), а так же сама вентилируемая воздушная прослойка в расчёт не принимались.

5) Значение термического сопротивления однородного слоя ограждающей конструкции, (м2оС)/Вт, определяем по формуле 3.12:


Ri = δii,                                                             (3.12)


где δi – толщина слоя, мм;

λi – теплопроводность материала слоя, Вт/(м ∙ оС), принимаемая по приложению «Т» СП 50.13330.2012 «Тепловая защита зданий».


R0усл = 1/8,7 + 0,15/0,18 + х/0,039 + 0,0002/0,7 + 1/23 = 0,99 + х/0,045 (м2оС)/Вт

0,99 + х/0,039 = 3,54 (м2оС)/Вт

х = 0,099 м

Принимаем толщину утеплителя δут = 0,10 м = 10 см.

Тогда:

R0усл = 0,99 + 0,10/0,039 = 3,55 (м2оС)/Вт

6) Производим проверку подобранной толщины утеплителя по условию 3.13:


R0усл > R0тр                                                             (3.13)


3,55 > 3,54

Условие выполняется. Оставляем толщину утеплителя δут = 10 см.

(обратно) (обратно)

3.3 Перекрытия

Перекрытия в спроектированном доме деревянные. Перекрытие пола 1-го этажа располагается в венце Б на отметке 0,000 м; перекрытие пола мансардного этажа располагается в венце №19 на отметке +2,850 м.

Несущим элементом перекрытий являются деревянные балки, выполненные из досок сечением 200×50 мм (в перекрытии пола 1-го этажа) и 150×50 мм (в перекрытии пола мансардного этажа). Перекрытие пола мансардного этажа дополнительно усилено двумя брусьями сечением 150×150 мм. Брус по оси 2 предусмотрен для восприятия нагрузки от опорной стойки конькового прогона; брус в осях 1-2 предусмотрен для формирования люка с устроенной в нём раздвижной лестницей, посредством которой сообщаются 1-ый и мансардный этажи; а так же для устройства перекрытия пола мансардного этажа в перпендикулярном к основным несущим балкам направлении.

Брусья и балки заделаны в стену на половину толщины стены.

Расчёт несущих элементов перекрытия на восприятие сечением балки нагрузки от людей и мебели, а так же на смятие древесины балки в приопорной зоне производился вручную в соответствии с требованиями СП 64.13330.2017 «Деревянные конструкции», и в данном пособии не рассматривается. Временная распределённая нагрузка на перекрытие (от людей и мебели) принималась в соответствии с СП 20.13330.2011 «Нагрузки и воздействия». Её нормативное значение составляет 1,5 кПа = 152 кг/м2. Коэффициент надёжности по нагрузке равен 1,3 (т.е. запас прочности составляет 30%).

В перекрытии пола 1-го этажа устраивается утепление плитами минераловатными из каменного волокна «ТЕХНОНИКОЛЬ Роклайт» с вентилируемой воздушной прослойкой «снизу». В перекрытии пола мансардного этажа устраивается звукоизоляция плитами минераловатными из каменного волокна «ТЕХНОНИКОЛЬ Акустик» с вентилируемой воздушной прослойкой «сверху». Толщина утеплителя в перекрытии пола 1-го этажа назначается конструктивно и равняется 200 мм.

Рассмотрим проверку толщины утепляющего слоя в перекрытии пола 1-го этажа по методике, представленной в п. 3.2 настоящего пособия. Конструкция перекрытия изнутри-наружу приведена на рисунке 3.4 и в таблице 3.9. Нумерация элементов на рисунке и в таблице совпадает.




Рисунок 3.4 – Конструкция перекрытия


Таблица 3.9 – Конструкция перекрытия пола 1-го этажа (изнутри-наружу)



1) Определяем градусо-сутки отопительного периода, оС ∙ сут/год, по формуле 3.9:

ГСОП = (20 – (-4,5)) ∙ 250 = 6125 оС ∙ сут/год

2) Определяем значение требуемого сопротивления теплопередаче перекрытия, (м2оС)/Вт, по формуле 3.10:

R0тр = 0,00045 ∙ 6125 + 1,9 = 4,66 (м2оС)/Вт

3) Нормируемое значение приведенного сопротивления теплопередаче перекрытия определяем по формуле 3.8:

R0норм = 4,66 ∙ 1 = 4,66 (м2оС)/Вт

4) Определяем условное сопротивление теплопередаче перекрытия, (м2оС)/Вт, по формуле 3.11.

Примечание:

При определении условного сопротивления теплопередаче перекрытия слои, лежащие ниже вентилируемой воздушной прослойки (при рассмотрении конструкции изнутри-наружу), а так же сама вентилируемая воздушная прослойка в расчёт не принимались.

R0усл = 1/8,7 + 0,012/0,26 + 0,004/0,042 + 0,018/0,20 + 0,0002/0,7 + 0,050/0,041 + 0,150/0,041 + 0,0002/0,7 + 1/23 = 5,27 (м2оС)/Вт

Принимаем толщину утеплителя δут1 = 0,05 м = 5 см; δут2 = 0,15 м = 15 см.

5) Производим проверку выполнения условия 3.13:

5,27 > 4,66

Условие выполняется. Оставляем толщину утеплителя δут1 = 0,05 м = 5 см; δут2 = 0,15 м = 15 см.

Расчёт потребного количества пиломатериалов на перекрытие приведён в таблице 3.12.

(обратно) (обратно)

3.4 Крыша

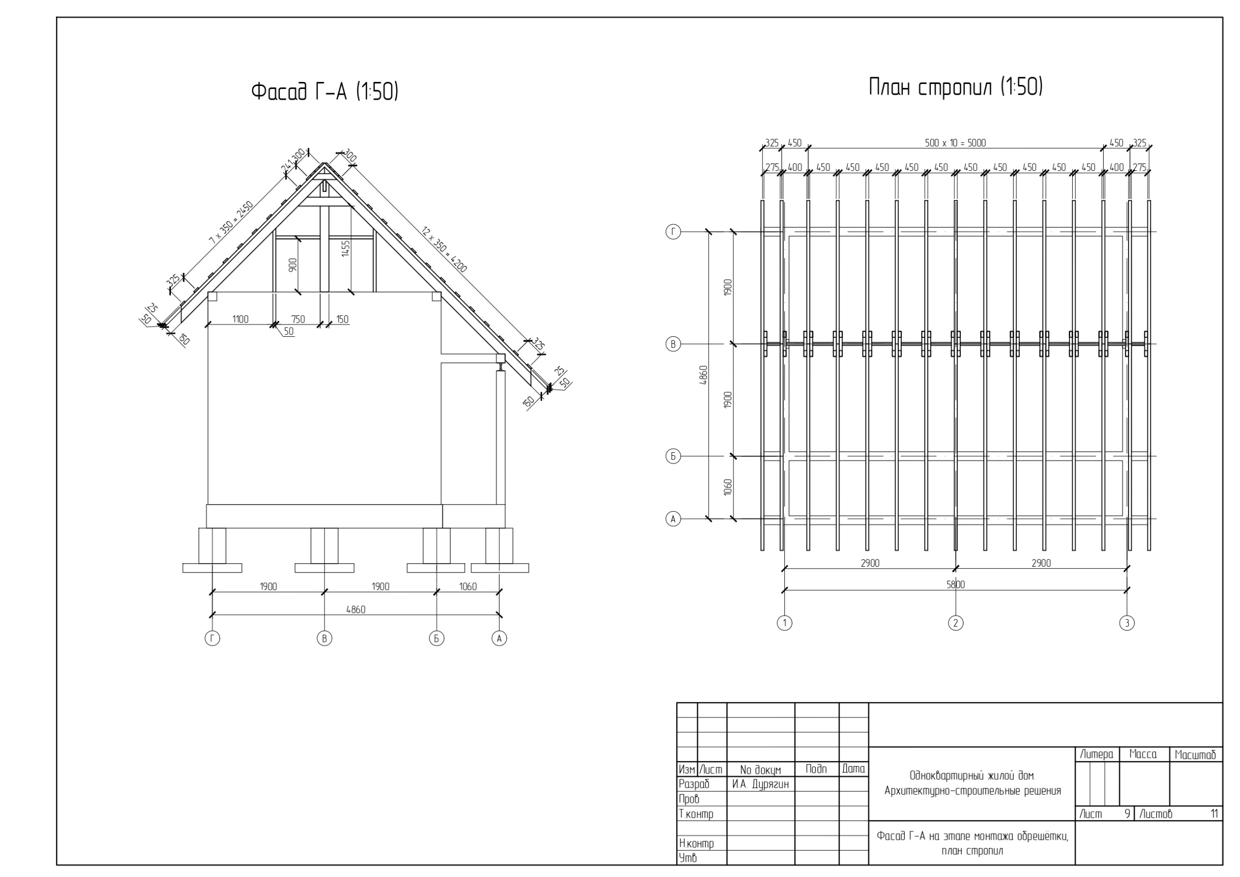
В данном пособии рассматривается вариант устройства утеплённой двускатной крыши с разными длинами скатов. Длина большого ската составляет 5,00 м, длина малого ската составляет 3,50 м. Угол наклона скатов к горизонту одинаков и составляет 45о.

В качестве кровельного покрытия используется металлочерепица типа «Классик» с шагом ступенек 350 мм по длине листа черепицы.

(обратно)

3.4.1 Стропильная система

В качестве несущих конструкций стропильной системы выбраны сосновые доски сечением 150×50 мм (стропильные ноги). Угол наклона стропильных ног к горизонту составляет 45о.

Карнизный свес крыши составляет 45 см и формируется за счёт стропильных ног. Выпуск крыши за плоскость фронтона составляет 32,5 см и формируется за счёт выпусков конькового прогона, брусьев венца №24, а так же прогона веранды за плоскость стены на расстояние 32,5 см.

Стропильные ноги малого ската имеют 2 точки опоры: на стену и на коньковый прогон. Стропильные ноги большого ската имеют 3 точки опоры: на прогон веранды, на стену и на коньковый прогон. Для опирания стропильных ног на стену и прогон веранды в них выпиливается специальный вырез.

Друг с другом стропильные ноги стыкуются на коньковом прогоне и фиксируются с помощью накладок, выполненных из сосновой доски сечением 100×50 мм. Накладки устанавливаются согласно плану стропил, представленному в части АР, Лист 9, и скрепляют конструкцию на болтах. К стенам стропильные ноги крепятся с помощью уголков.

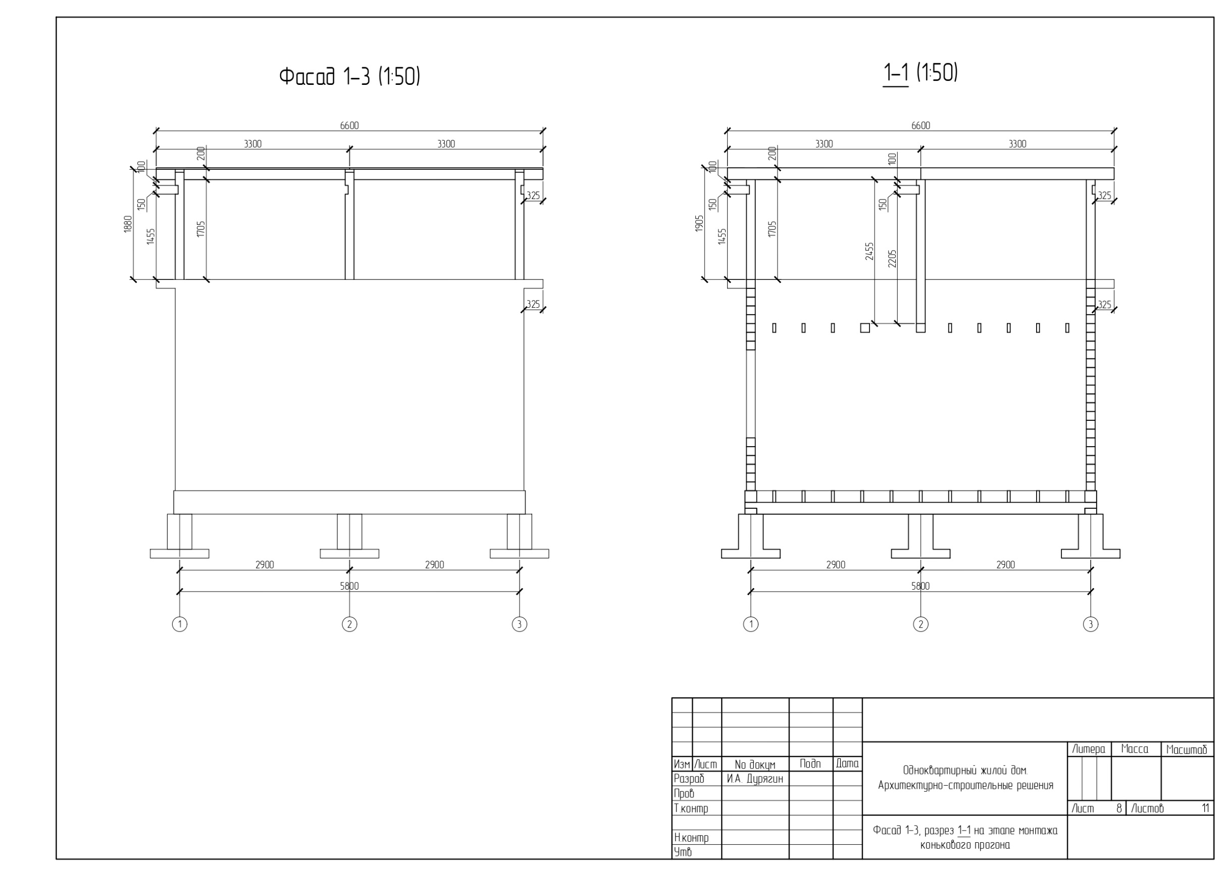
Коньковый прогон выполняется из доски сечением 200×50 мм и является составным по длине. Каждый элемент конькового прогона имеет 2 точки опирания: на крайнюю и на среднюю опорные стойки конькового прогона. Стыковка элементов конькового прогона осуществляется в специальном пропиле средней опорной стойки конькового прогона. К стойке элементы конькового прогона крепятся с помощью шурупов размером 6×120 мм с головкой «под ключ» (по 2 шурупа на элемент конькового прогона). Для увеличения площади контакта с поверхностью стропильных ног в опорной зоне, верхняя грань конькового прогона скошена под углами 45о со стороны каждого ската. Таким образом коньковый прогон имеет сечение «домик».

Крайние опорные стойки конькового прогона устанавливаются на стены по осям 1 и 3. К стенам они крепятся с помощью уголков. Кроме того, в стене, на месте установки опорной стойки, устраивается паз, в который заводится шип на конце стойки. Средняя опорная стойка крепится к брусу по оси 2. Крепление осуществляется с помощью специального арматурного стержня гладкого профиля.

Для обеспечения совместной работы пары стропильных ног устраиваются распорные доски. Вблизи опорных стоек, распорные доски стропильных ног заводятся в специальные пазы, выпиленные в стойках. К стропильным ногам распорные доски крепятся встык (в местах установки опорных стоек) или внахлёст (вне опорных стоек).

Расчёт потребного количества пиломатериалов на стропильную систему приведён в таблице 3.12.

(обратно)

3.4.2 Обрешётка

По стропильным ногам натягивается гидроветрозащитная мембрана. Первоначально мембрана крепится к стропильным ногам спомощью строительного степлера. Полотна мембраны соединяются друг с другом с помощью двухсторонней самоклеящейся акриловой ленты.

На мембрану по стропильным ногам набиваются элементы контр-обрешётки. Элементы контр-обрешётки служат для создания подкровельного вентилируемого пространства. Они выполняются из сосновых брусков сечением 50×50 мм. Длина элемента контр-обрешётки находится как ширина полотна мембраны за вычетом ширины нахлёста полотен.

По контр-обрешётке устраивается обрешётка. В качестве обрешётки используется сосновая доска сечением 100×25 мм. Шаг обрешётки постоянный и равен расстоянию между ступеньками металлочерепицы, в данном случае он составляет 350 мм. Шаг между первой и второй досками обрешётки от края ската равен 325 мм. Длина ската спроектированного дома больше стандартной длины пиломатериалов (6 м), поэтому обрешётка выполняется составной. Элементы обрешётки стыкуются только на опорах, которыми для них являются элементы контр-обрешётки.

Вверху каждого ската монтируется по 4 доски обрешётки вплотную. Между досками, которые сходятся в вершине крыши, устраивается щель для обеспечения вентиляции подкровельного пространства.

Схема обрешётки приведена на рисунках 3.5 и 3.6.

Расчёт потребного количества пиломатериалов на обрешётку приведён в таблице 3.12.




Примечания:

1) Цифры на рисунках 3.5 и 3.6 означают длину элемента обрешётки.

2) Продольный размер ската составляет 6,6 м, что меньше суммы длин элементов обрешётки на рисунках 3.5 и 3.6 (7 м), однако, целесообразно изготавливать элементы обрешётки с запасом во избежание ошибок при монтаже.

3) Смонтированная обрешётка подрезается по длине по крайним стропильным ногам.

Толщина утеплителя в крыше назначается конструктивно и равняется 200 мм.

Рассмотрим проверку толщины утепляющего слоя в крыше по методике, представленной в п. 3.2 настоящего пособия. Конструкция крыши изнутри-наружу приведена на рисунке 3.7 и в таблице 3.10. Нумерация элементов крыши на рисунке и в таблице совпадает.




1) Определяем градусо-сутки отопительного периода, оС ∙ сут/год, по формуле 3.9:

ГСОП = (20 – (-4,5)) ∙ 250 = 6125 оС ∙ сут/год

2) Определяем значение требуемого сопротивления теплопередаче перекрытия, (м2оС)/Вт, по формуле 3.10:

R0тр = 0,00035 ∙ 6125 + 1,4 = 3,54 (м2оС)/Вт

3) Нормируемое значение приведенного сопротивления теплопередаче перекрытия определяем по формуле 3.8:

R0норм = 3,54 ∙ 1 = 3,54 (м2оС)/Вт

4) Определяем условное сопротивление теплопередаче перекрытия, (м2оС)/Вт, по формуле 3.11.

Примечание:

При определении условного сопротивления теплопередаче перекрытия слои, лежащие ниже внутренней и выше наружной вентилируемой воздушной прослойки (при рассмотрении конструкции изнутри-наружу), а так же сами вентилируемые воздушные прослойки в расчёт не принимались.

R0усл = 1/8,7 + 0,0002/0,7 + 0,15/0,041 + 0,0002/0,7 + 1/23 = 3,81 (м2оС)/Вт

Принимаем толщину утеплителя δут = 0,15 м = 15 см.

5) Производим проверку выполнения условия 3.13:

3,81 > 3,54

Условие выполняется. Оставляем толщину утеплителя δут = 0,15 м = 15 см.

(обратно)

3.4.3 Фронтоны

Фронтоны представляют собой каркасную конструкцию с утеплением внутри. Каркас фронтона формируется стропильными ногами, опорной стойкой конькового прогона, двумя стойками каркаса прогона, двумя перемычками каркаса фронтона.

Рассмотрим проверку толщины утепляющего слоя в каркасе фронтона по зимнему варианту по методике, представленной в п. 3.2 настоящего пособия. Конструкция каркаса фронтона изнутри-наружу приведена на рисунке 3.8 и в таблице 3.11. Нумерация элементов фронтона на рисунке и в таблице совпадает.




Рисунок 3.8 – Каркасы фронтона: зимний вариант (слева) и летний вариант (справа)

Таблица 3.11 – Конструкция каркаса фронтона по зимнему варианту (изнутри-наружу)



1) Определяем градусо-сутки отопительного периода, оС ∙ сут/год, по формуле 3.9:

ГСОП = (20 – (-4,5)) ∙ 250 = 6125 оС ∙ сут/год

2) Определяем значение требуемого сопротивления теплопередаче фронтона, (м2оС)/Вт, по формуле 3.10:

R0тр = 0,00035 ∙ 6125 + 1,4 = 3,54 (м2оС)/Вт

3) Нормируемое значение приведенного сопротивления теплопередаче фронтона определяем по формуле 3.8:

R0норм = 3,54 ∙ 1 = 3,54 (м2оС)/Вт

4) Определяем условное сопротивление теплопередаче фронтона, (м2оС)/Вт, по формуле 3.11.

Примечание:

При определении условного сопротивления теплопередаче фронтона слои, лежащие за вентилируемой воздушной прослойкой (при рассмотрении конструкции изнутри-наружу), а так же сама вентилируемая воздушная прослойка в расчёт не принимались.

R0усл = 1/8,7 + 0,09/0,20 + 0,0002/0,7 + 0,140/0,041 + 0,0002/0,7 + 1/23 = 4,02 (м2оС)/Вт

Примечание:

В расчёте толщина утеплителя принята равной δут = 0,14 м = 14 см, исходя из стандартных размеров плит утеплителя.

5) Производим проверку выполнения условия 3.13:

4,02 > 3,54

Условие выполняется. Оставляем толщину утеплителя δут = 0,14 м = 14 см.

Рассмотрим определение потребного количества пиломатериалов на перекрытие и крышу. Результаты определения представлены в таблице 3.12.

Таблица 3.12 – Определение количества пиломатериалов на перекрытие и крышу






(обратно) (обратно)

3.5 Окна и двери

В данном проекте применяются двухкамерные стеклопакеты, состоящие из трех листовых стекол толщиной 4 мм, с мягким низкоэмиссионным покрытием на внутреннем стекле. Расстояние между стеклами 16 мм, заполнение наружной камеры – аргон, внутренней камеры – аргон.

Используется два типа окон стандартных габаритов. Окна первого этажа имеют габариты (Ш×В) 1170×1320 мм; окна мансардного этажа: 720×860 мм. Всего в спроектированном доме имеется 8 окон – по 4 на каждом этаже.

Входная дверь стандартная, и имеет габариты коробки (Ш×В) 880×2040 мм. Дверь открывается наружу. Возможно применение дверей как левостороннего, так и правостороннего открывания. Внутренние двери отсутствуют.

Для устройства окон и двери на первом этаже, стены возводятся уже с готовыми проёмами. В проёмах устанавливаются дверные и оконные колоды, выполняемые из бруса сечением 150×100 мм. К стенам колоды крепятся посредством соединения типа «шип-паз» с утеплением джутовым полотном в соединении, а так же с помощью гвоздей. Допускается два варианта установки колод. Первый вариант – установка колод сразу же после возведения стен. Тогда между перемычкой колоды и вышележащим брусом необходимо оставлять зазор, компенсирующий осадку стен. В проекте предусмотрен зазор 50 мм. Второй вариант – установка колод по истечении года с момента возведения стен. По прошествии года осадочные деформации, связанные с уменьшением сечения бруса стен вследствие усушки, пройдут, поэтому компенсирующий зазор допускается уменьшить до 10 мм.

Окна второго этажа устраиваются в проёмах, образуемых крайней опорной стойкой конькового прогона, стойками и перемычками каркаса фронтона.

(обратно) (обратно) (обратно)

4 Технология производства работ

4.1 Подготовка строительной площадки

Подготовка строительной площадки начинается с расчистки места под будущее строительство.

Главная цель подготовки строительной площадки – вынос координационных осей на местность. Координационные оси (А-Г; 1-3) являются ориентиром при отрывке шурфов, установке опалубки и арматурных каркасов, устройстве окладного венца, поэтому от правильного выноса осей на местность зависит правильность геометрических размеров будущего дома и совпадение их с проектными.

На местности координационные оси представляют собой шнуры, натянутые между двумя элементами обноски (скамеечками), расставленными друг напротив друга по разные стороны будущего дома. Скамеечки размещаются согласно схеме, представленной на рисунке 4.1. Ориентиром для установки скамеечек являются колышки, которые забиваются в землю в местах пересечения осей.

Скамеечки изготавливаются из сосновых досок сечением 100×25 мм или горбыля шириной 100 мм и толщиной 25 мм. Координационная ось обвязывается вокруг перекладины скамеечки. Шнур оси закрепляется двумя гвоздями, которые заколачиваются в перекладину по обе стороны от шнура. Такая система удобна тем, что позволяет корректировать положение шнура влево и вправо. Схема скамеечки представлена на рисунке 4.2.




Рисунок 4.2 – Обноска

(обратно) (обратно)

4.2 Фундаменты

4.2.1 Земляные работы

После выноса координационных осей на местность необходимо определить где будут находиться границы будущих шурфов (ям). Длина и ширина шурфа равна длине и ширине плитной части фундамента соответственно (1×1 м).

Для этого от пересечения осей по оси в каждую сторону откладывается расстояние, равное половине длины (ширины) шурфа, которое в данном случае составляет 0,5 м. К найденной точке на оси подвешивается отвес. Таким образом точка переносится на землю.

После определения границ всех шурфов оси снимаются.

Благодаря тому, что оси закреплены на перекладине с помощью двух гвоздей, легко восстановить изначальное положение снятой оси, не прибегая к долгой выверке.

Отрывка шурфов может производиться как вручную, так и с помощью экскаватора.

(обратно)

4.2.2 Грунтовая подготовка

После отрывки шурфа на заданную глубину, на его дно и стенки укладывается геотекстиль в один слой. На геотекстиле удобно проставить высотные отметки, на которых следует производить трамбовку песка при засыпке, а так же отметку, до которой следует засыпать песок.

Засыпку шурфа следует производить песком средней крупности с трамбовкой послойно через каждые 30 – 50 см. Песок можно проливать водой, что так же увеличит насыпную плотность засыпки.

Кровля песчаной засыпки шурфов должна быть приведена к единой высотной отметке. Для этого можно воспользоваться гидроуровнем (ватерпасом) или нивелиром (оптическим или лазерным). На рисунке 4.3 приведена инструкция работы лазерным нивелиром. Для работы с лазерным нивелиром можно использовать геодезическую рейку, однако подойдёт и обычная доска. Лазерный нивелир устанавливается на штативе в месте, откуда можно «снять» высотные отметки засыпки во всех шурфах (1). Пока съёмка не окончена запрещается переносить прибор на другое место. Далее выбирается шурф, высота засыпки которого принимается за эталонную. На кровлю засыпки этого шурфа устанавливается доска, как показано на рисунке 4.3 (1). Лазерный нивелир наводится на доску (2). На доске делается отметка на уровне, на котором оказался лазерный луч (3). Доска с отметкой переносится на следующий шурф (4). Нивелир наводится на доску на следующем шурфе (5). Сравнивается положение лазерного луча с отметкой на доске (6). Если луч ниже отметки (6а) – необходимо снять грунт; если выше (6б) – досыпать.






Рисунок 4.3 – Схема использования лазерного нивелира


После приведения кровли засыпки всех шурфов к единой высотной отметке, поверх засыпки необходимо уложить геотекстиль в один слой.

По геотекстилю необходимо произвести засыпку щебнем до заданной высотной отметки и привести кровлю засыпки к единой высотной отметке.

Поверх засыпки уложить геомембрану типа «Технониколь-Planter».

(обратно)

4.2.3 Опалубочные работы

Для устройства опалубки используются сосновые доски сечением 150×25 или 100×25, либо горбыль того же сечения, либо фанера или плита OSB-3. Опалубка собирается по размерам будущих фундаментов.

В данном пособии рассматривается раздельное бетонирование плитной части фундамента и стоек, поскольку при таком варианте бетонирования опалубку изготавливать намного проще, а так же материал с опалубки плит можно частично пустить на изготовление опалубки стоек.

Опалубку плитной части фундамента следует устраивать таким образом, чтобы верхняя поверхность будущей плиты располагалась ниже верха опалубки (см. рисунок 4.4). Верхние поверхности плит должны быть в одной плоскости. Для того, чтобы это обеспечить, с внутренней стороны опалубки необходимо проставить отметку, до которой следует заливать бетонную смесь. Отметки проставляются с помощью нивелира, по принципу, описанному в п. 4.2.2. Для того, чтобы «не потерять» отметку при заливке бетоном, изнутри в опалубку забивается гвоздь на уровне поставленной отметки.

Изнутри опалубка обшивается полиэтиленовой плёнкой толщиной минимум 150 мкм для того, чтобы влага из бетона не ушла через щели и не впитывалась в материал опалубки.

Если прочность опалубки плитной части фундамента вызывает сомнение, а так же в случае, когда низ плиты оказался расположенным на уровне земли, производится усиление опалубки, как показано на рисунке 4.4. Усиление осуществляется специальными треугольными элементами. На конце катета, лежащего на земле, вбивается колышек таким образом, чтобы катет упирался в этот колышек. Все части треугольного элемента изготавливаются из доски того же сечения, что и доска для изготовления опалубки.




Рисунок 4.4 – Усиление опалубки плитной части фундамента


По истечении 3-х суток с момента заливки плит устанавливается опалубка стоек фундамента. Если требуется использовать часть материала опалубки плит при изготовлении опалубки стоек, то необходимо выждать 7 суток с момента бетонирования перед распалубливанием плит.

Ориентиром при бетонировании стоек является верх опалубки стоек. Верх опалубки всех стоек должен быть в одной плоскости.

Если при бетонировании плитной части фундамента верхние поверхности некоторых плит отклонились от заданной плоскости, то приведение отметок верхних поверхностей стоек к одной плоскости достигается за счет локального увеличения/уменьшения высоты опалубки стойки.

Опалубка стоек обтягивается перфолентой или проволокой в нескольких местах для предотвращения расползания щитов во время бетонирования. Изнутри опалубка обшивается полиэтиленовой плёнкой толщиной минимум 150 мкм для того, чтобы влага из бетона не ушла через щели и не впитывалась в материал опалубки.

Если прочность опалубки стойки вызывает сомнение, производится усиление опалубки, как показано на рисунке 4.5. Для этого выпиливаются 4 бруска сечением 75×50 мм. Бруски стыкуются внахлёст в углах опалубки, как показано на рисунке 4.5. Друг с другом бруски соединяются с помощью стержней арматуры, которые вставляются в заранее просверленные на месте стыка отверстия. Усиление к опалубке крепится на шурупах.




Рисунок 4.5 – Усиление опалубки стойки

(обратно)

4.2.4 Армирование

Процент армирования по объёму фундамента составляет 1,5%.

Армирование плитной части фундамента производится двумя арматурными сетками арматуры периодического профиля класса А500, диаметром 6 мм. Ячейка сетки имеет габариты 150×150 мм. Соединение сеток осуществляется за счёт С-образных арматурных стержней, как показано на листе 1, КР.

Друг с другом стержни в каркасе плиты соединяются на сварке. Так же возможно соединение стержней вязальной проволокой с помощью крючка для вязки арматуры.

Арматурный каркас стойки представлен стержнями продольного (вертикальные) и поперечного (горизонтальные) армирования. Продольное армирование выполняется П-образными элементами, выполненными из арматуры периодического профиля класса А500, диаметром 6 мм, как показано на листе 1, КР. П-образные элементы соединяются с каркасом плиты.

Поперечное армирование представлено квадратными хомутами, выполненными из арматуры периодического профиля класса Вр500, диаметром 6 мм.

Так же в стойку замоноличивается вертикальный арматурный стержень, выполненный из арматуры гладкого профиля класса А500, диаметром 10 мм. Стержень служит для связи фундамента с окладным венцом. Для фиксации стержня в арматурном каркасе к хомутам в двух местах крепятся кресты из двух стержней арматуры периодического профиля класса А500, диаметром 6 мм. Стержень подвязывается к этим крестам.

Арматурные каркасы изготавливаются отдельно от опалубки. Готовый каркас помещается в опалубку плитной части фундамента до бетонирования.

Главное требование по размещению арматурного каркаса в бетонируемой конструкции – слой бетона от внешней поверхности конструкции до внешней поверхности арматуры должен составлять 30…35 мм. Этот слой называется защитным слоем бетона. Для обеспечения требуемой толщины защитного слоя бетона, при установке каркаса в опалубку используются фиксаторы арматуры.

В каркасе плиты фиксаторы арматуры типа «стульчик» или «ёлочка» подставляются под нижнюю сетку для обеспечения требуемой толщины защитного слоя бетона снизу. Фиксаторы арматуры типа «звёздочка» надеваются на вертикальные стержни (продольного армирования) стойки для обеспечения требуемой толщины защитного слоя бетона сбоку. Фиксаторы арматуры типа «звёздочка» используются и в каркасе плиты для обеспечения требуемой толщины защитного слоя бетона сбоку.

(обратно)

4.2.5 Бетонирование

В данном проекте предполагается использование бетона со следующими характеристиками:

– класс бетона: В20;

– подвижность бетонной смеси: П4;

– водонепроницаемость: W4;

– крупный заполнитель: щебень фракции 5…20.

Бетонирование может производиться заводским бетоном с лотка автобетоновоза или из ящика вёдрами (телегами); либо бетоном, изготовленным на строительной площадке (вёдрами/ телегами). Бетонирование с помощью автобетононасоса нецелесообразно из-за небольших объёмов конструкций.

При заливке бетоном с лотка должен быть организован подъезд автобетоновоза к самим бетонируемым конструкциям непосредственно. Часть конструкций заливается бетонной смесью с помощью лотка, имеющегося на машине. Для остальных конструкций необходимо сооружать специальный лоток, по которому будет доставляться бетонная смесь к этим конструкциям. Лоток выполняется из таких же досок, что и опалубка. Изнутри лоток обшивается листами ДВП для того, чтобы влага из бетонной смеси не просачивалась сквозь щели в лотке и не уходила в материал лотка по мере перемещения по нему бетонной смеси. Перемещение бетонной смеси по лотку осуществляется за счёт уклона лотка, а так же с помощью лопат для бетонирования.

Преимущества данного способа:

– трудоёмкость работ по сравнению с бетонированием вёдрами и телегами куда ниже;

– высокая скорость бетонирования;

– объём бетонируемых конструкций за одну доставку ограничен только объёмом барабана автобетоновоза (по сравнению с бетонированием из ящика).

Из недостатков стоит отметить:

– необходимость сооружения лотка для бетонирования;

– необходимость организации подъезда автобетоновоза к бетонируемым конструкциям;

– вероятность потери бетонной смеси при разрушении или опрокидывании лотка.

Бетонирование из ящика применяется, когда доступ автобетоновоза к заливаемым конструкциям ограничен. Для бетонирования сооружается специальный ящик из таких же досок, что и опалубка. Изнутри ящик обшивается плитами ДВП для того, чтобы влага из бетонной смеси не просачивалась сквозь щели в ящике и не уходила в его материал. Для ящика применяются те же методы усиления, что и для опалубки.

Если поставлена задача забетонировать все конструкции за одну доставку бетона, необходимо соорудить ящик (ящики) объёмом больше либо равным объёму заливаемых конструкций, что не всегда возможно реализовать.

Идея бетонирования из ящика состоит в том, что бетонная смесь из автобетоновоза сначала подаётся в ящик, а затем растаскивается вручную (в вёдрах или телегах) по бетонируемым конструкциям. Ящик устраивается в ближайшем к месту заливки конструкций месте, куда есть доступ для автобетоновоза.

Преимущества данного способа:

– не обязательно организовывать доступ автобетоновоза к заливаемым конструкциям;

– достаточно высокая скорость бетонирования.

Из недостатков стоит отметить:

– большая трудоёмкость работ, вследствие чего необходимо присутствие большего числа рабочих по сравнению с двумя другими способами;

– необходимость сооружения ящика для бетонирования;

– объём бетонируемых за одну доставку конструкций ограничен объёмом ящика;

– вероятность потери бетона при разрушении ящика от напора бетонной смеси.

Приготовление бетонной смеси на строительной площадке применяется в случае, когда бетонирование вышеописанными методами невозможно. Бетонная смесь может изготавливаться в бетономешалке, либо в бадье с применением строительного миксера. Бетонная смесь переливается в вёдра или телеги и растаскивается по бетонируемым конструкциям.

Преимущества данного способа:

– автономность: проведение работ не зависит от возможностей бетонозавода по доставке бетона на строительную площадку в тот или иной день (час);

– отсутствие затрат на транспортировку бетона от бетонозавода;

– бетонная смесь может изготавливаться в непосредственной близости от бетонируемой конструкции и подаваться в опалубку прямо из бетономешалки или из бадьи;

– при небольших объёмах бетонирования возможно забетонировать все конструкции в одиночку.

Из недостатков стоит отметить:

– низкая скорость бетонирования по сравнению с предыдущими методами;

– качество бетонной смеси всегда разное и может быть ниже, чем у заводского бетона;

– необходимость доставки составляющих для приготовления бетонной смеси на строительную площадку;

– высокая трудоёмкость работ.

При бетонировании конструкций необходимо:

– вибрировать бетонную смесь в опалубке глубинным вибратором по мере заливки;

– укрывать конструкцию плёнкой по окончании заливки бетоном;

– поливать забетонированную конструкцию водой в первые сутки – через каждые 3-5 часов, в последующие двое суток – 3 раза в день;

– на открытом солнце, когда температура окружающего воздуха поднимается выше +20оС, необходимо сократить интервал поливки конструкции водой;

– отслеживать образование усадочных трещин в конструкции в первые 3 суток; при образовании усадочных трещин необходимо сократить интервал поливки конструкции водой; по истечении 7 суток с момента бетонирования – заделать трещины раствором той же марки, что и марка бетона конструкции.

Бетонирование под проливным дождём не допускается. Температура окружающего воздуха при заливке бетоном конструкции, а так же в последующие 28 суток должна быть больше или равна +5оС.

Загружать конструкции фундамента допускается только по истечении 28 суток с момента бетонирования. Кроме того, необходимо выждать год с момента возведения фундамента, в течение которого будет происходить осадка грунта основания.

(обратно)

4.2.6 Гидроизоляция

В качестве гидроизоляции используется битумная мастика, которая наносится в два слоя на все поверхности фундаментов, кроме верхней поверхности стойки, на которую укладывается окладной венец. Перед нанесением мастика разогревается до жидкого состояния.

На верхнюю поверхность стойки фундамента, которая контактирует с окладным венцом, укладывается 1 слой рулонной наплавляемой гидроизоляции типа «Технониколь-Техноэтаст». Рулонная гидроизоляция должна свешиваться на 5 см с каждой стороны стойки.

(обратно) (обратно)

4.3 Стены

4.3.1 Подготовительные работы

Подготовительные работы заключаются в подготовке места для складирования материала на возведение стен, в завозе и консервации материала.

Строительство лучше всего осуществлять из зимнего леса, поскольку он имеет меньшую влажность, и в нём меньшее количество спор вредоносных грибков. Кроме того, сохранить зимний лес от образования и развития в нём грибков после завоза проще, чем летний.

Закупку и завоз материала стен лучше всего осуществлять в зимний период, поскольку только зимой на строительных базах имеется зимний лес. Летом на базах зимнего леса практически не бывает. Оптимальное время для закупки и завоза бруса – середина – конец февраля.

Площадку для складирования бруса необходимо подготовить заблаговременно. Это должно быть ровное, очищенное от снега до земли место. Прямо по земле необходимо расстелить полиэтиленовую плёнку толщиной больше либо равной 150 мкм для того, чтобы защитить брус от паров влаги, поднимающихся из грунта. Расстояние от земли до нижней поверхности первого ряда бруса должно быть больше либо равно 15 см. Для обеспечения этого расстояния на землю укладываются подкладки из брёвен (бруса). При подготовке площадки в зимний период необходимо учесть осадку подкладок вследствие оттаивания грунта весной. Минимальное количество подкладок под 1-ый ряд бруса – 3 шт: одна под серединой штабеля и две в полуметре от его концов.

Между рядами бруса так же следует устраивать подкладки. Каждая подкладка нового ряда должна быть точно над местом подкладки предыдущего ряда. Минимальная толщина подкладки – 25 мм. Не следует устраивать слишком широкие подкладки, поскольку так увеличивается вероятность образования грибка в брусе на месте подкладки. Оптимальные габариты штабеля: 10 рядов в ширину, 9 – 10 рядов в высоту. Подкладок сечением 25×50 мм вполне хватит для такого штабеля.

Между соседними в ряду брусьями должно быть расстояние 30…50 мм.

Сверху штабель следует накрывать полиэтиленовой плёнкой, обеспечивая возможность проветривания поверхностей бруса, контактирующих с плёнкой.

Схема складирования бруса на строительной площадке приведена на рисунке 4.6.




Рисунок 4.6 – Складирование бруса на строительной площадке


Следует помнить о деформациях бруса по мере его высыхания, таких как прогиб и кручение. Такие деформации происходят как правило в брусьях двух верхних рядов штабеля. Чтобы снизить количество деформировавших брусьев можно дополнительно пригрузить верхний ряд штабеля в местах расположения подкладок. Для пригруза можно изготовить несколько бетонных блоков из остатков бетона фундамента на этапе бетонирования. Блоки на штабеле следует располагать равномерно, над местами расположения подкладок верхнего ряда бруса, положив под них такие же подкладки как и для бруса.

Снизить вероятность деформирования бруса при усушке можно и на этапе выбора материалов, если продавец материалов предоставляет такую возможность. Брус, сердцевина которого расположена по центру (или почти по центру) менее подвержен деформации, чем брус со смещённой к краю сердцевиной. Это связано с тем, что плотность древесины у центра и по краям разная; вследствие этого, напряжения в сечении бруса по мере высыхания распределяются так же по-разному.

Ещё один способ снизить количество деформировавших брусьев – размещать брусья со смещённой сердцевиной в нижних рядах штабеля.

Так же необходимо помнить о том, что чем больше габариты сечения бруса, тем меньше он подвержен деформациям.

Очень важно после завоза бруса на строительную площадку обработать его антисептирующим составом для предотвращения образования и развития в нём грибков. В любом брусе, даже в том, который был заготовлен зимой, есть споры дереворазрушающих грибков. Споры активно развиваются, когда температура окружающего воздуха устойчиво держится больше или равной +5оС, а так же при повышенной влажности воздуха или при замокании бруса во время дождя. Зимой, вследствие того, что температура окружающего воздуха, как правило, не поднимается выше 0оС, споры грибка не развиваются.

Для обработки бруса в летних условиях можно воспользоваться антисептирующим составом на водной основе типа «Сенеж – Био», и др. Обработку для консервации следует осуществлять в 1 слой.

Для обработки бруса в зимних условиях можно воспользоваться зимним антисептирующим составом на водной основе типа «Pirilax – Classic» – до -15оС (возможна обработка и до -30оС), «Борей» – до -25оС и пр. Перед обработкой бруса зимой антисептик следует нагревать до температуры +80…+90оС. Для нагрева антисептика можно использовать кипятильник мощностью 1…1,2 кВт.

При появлении на брусе следов образования грибка, поражённый участок необходимо обработать хлорным отбеливателем типа «Сенеж – Эффо», и др.

Закупать брус следует с запасом 3 – 5%.

При правильном складировании и консервации бруса зимой, в отходы вследствие деформаций при усушке уходит не более 5% материала.

(обратно)

4.3.2 Изготовление сруба и возведение стен

Возведение стен начинается с устройства окладного венца.

Сначала укладываются 4 бруса венца А по осям А – Г. В брусьях заранее просверливаются отверстия под стержни, выпущенные из фундаментов. Стержни для связи фундаментов с окладным венцом предварительно окрашиваются эмалью в 2 – 3 слоя для защиты металла стержня от коррозии.

Поверх уложенных брусьев накладываются 2 бруса по осям 1, 3. Производится разметка на брусьях по месту для определения размеров будущих врубок. В брусьях устраиваются врубки «вполдерева».

Венец Б монтируется таким же образом, с той разницей, что брус по оси В в венце Б отсутствует, а в брусьях по осям Б и Г устраиваются запилы под балки перекрытия пола 1-го этажа.

Брусья венца А соединяются с брусьями венца Б с помощью деревянных нагелей диаметром 25…30 мм. После укладки брусьев венца Б производится сверление отверстий через 2 венца. Отверстия просверливаются низкооборотной дрелью со сверлом диаметром равным или чуть меньше диаметра нагелей. Отверстия размещаются равномерно по длине бруса. На брус 5-метровой длины приходится 3 – 4 отверстия, на брус 6-метровой длины – 4 – 5 отверстий. В отверстия забиваются нагели. После забивки нагеля заподлицо с поверхностью бруса, обращённой наверх, нагель необходимо заглубить в отверстие ещё на 25 – 30 мм. Это расстояние не даст нагелю выступить из венца вверх при уменьшении бруса в объёме вследствие усушки материала и при осадке дома (см. рисунок 3.1).

Все деревянные конструкции и их элементы, а так же все участки конструкций, которые подвергались механической обработке должны быть покрыты антисептирующим составом в 2 слоя.

После забивки нагелей устанавливаются деревянные балки перекрытия пола 1-го этажа. Балки должны заходить в запилы в венце Б вплотную. Если между балкой и стенками запила имеется зазор – необходимо законопатить его утеплителем – джутовым полотном.

Джутовое полотно между венцами А и Б не прокладывается.

Далее можно приступить к изготовлению сруба и возведению стен.

Существует 2 варианта возведения стен: с предварительным изготовлением сруба или без него.

В первом варианте необходимо сначала выпилить брусья на все венцы. Таким образом, изготовление венцов и возведение стен являются отдельными самостоятельными этапами. Подгонка брусьев в венце друг к другу осуществляется на этапе возведения стен.

Этот вариант производства работ требует отдельного места для складирования готовых брусьев; но он позволяет поднимать наверх брусья сразу нескольких венцов, что облегчает возведение стен; а так же позволяет более грамотно распорядиться имеющимся материалом при изготовлении венцов. Готовые брусья удобнее всего складировать рядом с соответствующей стеной.

Во втором варианте изготовление венцов и возведение стен совмещено друг с другом.

Этот вариант производства работ подходит для стеснённых условий, когда недостаточно места для складирования готовых брусьев.

Тип соединения брусьев в венце – «шип-паз». Такое соединение используется для уменьшения притока холодного воздуха через углы дома. Внутрь соединения прокладывается утеплитель – джутовое полотно.

Брусья соседних венцов соединяются друг с другом с помощью деревянных нагелей. Верх нагеля так же не должен доходить до верха отверстия на 25 – 30 мм. Между брусьями прокладывается утеплитель – джутовое полотно. Полотно крепится к брусьям при помощи строительного степлера. В утеплителе заранее прорезаются «окошечки» в тех местах, где будут сверлиться отверстия под нагели. Это делается потому, что низкооборотной дрелью нельзя сделать отверстие в джутовом полотне.

В стене нагели располагаются в шахматном порядке. Очень удобно отмечать положение нагеля в стене вертикальными линиями на внешней стороне стены.

Если монтируемый брус имеет деформацию типа «прогиб», то в венце он укладывается «горбом» вверх.

После монтажа очередного венца, необходимо его осадить. Для этого по уложенным брусьям наносятся удары массивной деревянной кувалдой.

Контролировать вертикальность стены лучше всего с помощью уровня в углах стены.

Контролировать правильность положения брусьев простенков можно с помощью шнура. Шнур натягивается по верхней поверхности стены по центру и закрепляется в крайних её точках. Таким образом, можно контролировать как отклонение положения брусьев простенков по высоте, так и смещение центров брусьев от шнура внутрь или наружу.

Венец №10 или №11 необходимо устроить без простенков. Этот венец является обвязочным для предыдущих 4-х/5-ти венцов с простенками.

Брусья венца №17 по осям 1 и 3 выступают за плоскость стены по оси Б на 1085 мм для укладки на них прогона веранды.

Брусья венца №24 по осям Б и Г являются составными по длине. В месте стыка брусьев используется соединение «шип-паз». Внутри соединения прокладывается джутовое полотно. Эти брусья выступают за плоскость стен по осям 1 и 3 на 325 мм для опирания на них крайних стропильных ног.

Леса для возведения стен лучше всего устраивать изнутри дома.

По окончании возведения стен производится монтаж стоек и прогона веранды. Прогон веранды выступает за плоскость стен по осям 1 и 3 на 325 мм для опирания на него крайних стропильных ног. Прогон веранды состоит из двух элементов, скрепляемых шурупами 6×120 мм с головкой «под ключ». Элементы соединяются над стойкой веранды в осях 1 – 2. Используется соединение «в полдерева».

Прогон веранды собирается на земле, а затем поднимается и укладывается на брусья венца №17. Под прогон веранды подводятся стойки веранды.

К прогону веранды стойки крепятся с помощью компенсаторов усадки сруба (винтовых домкратов), а к окладному венцу – с помощью арматурных стержней гладкого профиля. Стержни окрашиваются эмалью в 2 – 3 слоя для предотвращения коррозии металла стержня.

Сначала монтируются крайние стойки, затем – средние. Порядок монтажа стойки следующий:

– установка опорной площадки винтового домкрата на прогон веранды;

– сверление отверстия в стойке под болт винтового домкрата;

– установка опорной площадки винтового домкрата на стойку;

– помещение болта винтового домкрата с накрученной гайкой в отверстие стойки;

– сверление отверстия в окладном венце под стержень арматуры;

– сверление отверстия в стойке под стержень арматуры;

– установка стержня арматуры в отверстие в окладном венце;

– «насаживание» стойки на установленный в окладном венце стержень;

– вкручивание болта до упора в опорную площадку винтового домкрата прогона веранды.

По мере усадки сруба необходимо подтягивать гайку на болте винтового домкрата, чтобы опускался прогон веранды.

(обратно) (обратно)

4.4 Возведение крыши

4.4.1 Стропильная система

Возведение стропильной системы начинается с монтажа опорных стоек конькового прогона.

В стене на месте установки крайней опорной стойки конькового прогона вырубается паз под шип на конце стойки. Установленная стойка временно закрепляется на стене.

Средняя опорная стойка конькового прогона крепится к брусу перекрытия пола мансардного этажа при помощи арматурного стержня гладкого профиля. Стержень предварительно окрашивается эмалью в 2 – 3 слоя для предотвращения коррозии металла стержня.

В запилы на стойках заводятся элементы конькового прогона и стыкуются на средней опорной стойке. Элементы конькового прогона крепятся к средней стойке шурупами 6×120 мм с головкой «под ключ» (по 2 шурупа на 1 элемент). Стойки выравниваются в двух плоскостях и закрепляются на стенах/на брусе перекрытия с помощью стальных уголков и шурупов 6×70 мм с головкой «под ключ». Элементы конькового прогона крепятся к крайним стойкам шурупами 6×120 мм с головкой «под ключ» (по 2 шурупа на 1 стойку).

Далее следует монтаж стропил.

Стропильные ноги выставляются попарно и крепятся друг к другу на болтах при помощи накладок над коньковым прогоном.

После того, как выставлены все пары стропильных ног, производится выверка их положения. В местах опирания на стену стропила крепятся с помощью стальных уголков, болтов и шурупов 6×70 мм с головкой «под ключ». Каждая стропильная нога крепится к стене при помощи двух уголков.

По окончании монтажа стропил собираются каркасы фронтонов.

Стойки каркаса фронтонов к стенам крепятся с помощью стальных уголков и шурупов 6×70 мм с головкой «под ключ»; к стропилам – на гвоздях. Перемычки каркаса фронтонов к крайней опорной стойке конькового прогона крепятся с помощью стальных уголков и шурупов 6×70 мм с головкой «под ключ» (по 1 уголку на перемычку); к стойкам каркаса фронтона – на гвоздях.

Снаружи фронтон обшивается плитой OSB-3. Оконные проёмы оставляются открытыми. Обшивка фронтона производится через оконные проёмы.

(обратно)

4.4.2 Обрешётка

Возводить стропильную систему можно с внутренних лесов, которые использовались во время монтажа стен. Для устройства обрешётки и последующих кровельных работ необходимо смонтировать леса вдоль скатов крыши снаружи дома.

Устройству обрешётки предшествует монтаж карнизной планки (фартука – капельника) к стропилам. Планка крепится на саморезах по металлу с плоской головкой.

Далее накатывается одна полоса гидроветрозащитной мембраны. К стропилам мембрана крепится при помощи строительного степлера. Мембрана не должна провисать в пролёте между соседними стропильными ногами. К карнизной планке мембрана крепится с помощью самоклеящейся двухсторонней акриловой ленты.

Сверху на мембрану по стропильным ногам набиваются элементы контр-обрешётки. Длина элемента находится как ширина полотна мембраны за вычетом ширины нахлёста полотен. Для крепления элементов контр-обрешётки необходимо использовать гвозди с насечками (ершёные гвозди), которые должны заходить в тело стропил минимум на 50 мм, либо саморезы той же длины в сочетании с обычными гвоздями. Использовать «чёрные» саморезы не допускается.

Далее монтируется обрешётка в пределах ширины одного полотна мембраны. Стык элементов обрешётки производится только на опорах. Опорами для элементов обрешётки являются элементы контр-обрешётки. Стык элементов обрешётки в пролёте между соседними элементами контр-обрешётки не допускается. Шаг обрешётки выставляется с помощью шаблона либо по сторонам соседних досок, обращённым к свесу ската «по низам», либо по сторонам, обращённым к вершине ската «по верхам». Использовать шаблон, который устанавливается в пространство между соседними досками обрешётки не допускается.

Необходимо так же обратить внимание на то, что шаг между 1-ой и 2-ой досками обрешётки отличается от шага между остальными досками.

Между досками обрешётки соседних скатов, которые сходятся в вершине крыши, необходимо оставить зазор для выхода воздуха, вентилирующего подкровельное пространство (см. рисунок 4.7).




Рисунок 4.7 – Зазор для выхода воздуха, вентилирующего подкровельное пространство




Рисунок 4.8 – Соединение полотен мембраны на вершине крыши

(обратно)

4.4.3 Кровля

В качестве кровельного материала рекомендуется использовать металлочерепицу со следующими характеристиками:

– толщина металла: 0,5 мм;

– толщина защитного полимерного покрытия: 0,25 – 0,50 мм;

– содержание цинка: 275 г/м2.

Резка листов металлочерепицы (при необходимости) производится электрическими просечными ножницами по металлу, либо специальной насадкой на дрель для резки металлочерепицы типа «Grand Line – Стальной бобёр», либо электролобзиком с лезвием по металлу.

К доскам обрешётки листы металлочерепицы крепятся кровельными саморезами с шайбой и уплотнительной прокладкой. В правильно закрученном саморезе прокладка сжата лишь слегка.

Саморезы вкручиваются в лист металлочерепицы в области, где он контактирует с обрешёткой. Эта область находится по центру между соседними гребнями волн. Саморез должен располагаться ниже ступеньки листа металлочерепицы на 10…15 мм.

Монтаж листов металлочерепицырекомендуется производить справа-налево. В этом случае очередной лист накладывается сверху на уже смонтированный.

Монтировать листы можно так же и слева-направо. В этом случае очередной лист подсовывается под уже смонтированный. Это довольно удобно, но существует вероятность повредить защитное полимерное покрытие во время подсовывания листа.

Оптимальное количество рядов листов металлочерепицы по высоте ската при данных габаритах скатов – 2 ряда. При большем количестве рядов ошибки, которые были допущены при укладке листов каждого предыдущего ряда, будут увеличиваться при переходе к листам последующего ряда. Однако не рекомендуется использовать листы металлочерепицы длиной более 4 м. В противном случае повышается вероятность смятия листа во время выгрузки или укладки на скат.

По окончании укладки листов металлочерепицы монтируются доборные элементы кровли.

Сначала монтируется торцевая планка.

Для крепления торцевой планки на крайние стропильные ноги набиваются торцевые доски. Торцевая доска должна быть выше обрешетки на высоту профиля металлочерепицы. Минимальный нахлёст элементов торцевой планки – 100 мм.

Допускается использовать карнизные и торцевые планки с толщиной металла меньше, чем у листов металлочерепицы, но не менее 0,40 мм. Особенности монтажа торцевой планки показаны на рисунке 4.9.




Рисунок 4.9 – Монтаж торцевой планки


Перед монтажом планки конька в области перекрытия коньком листов металлочерепицы наклеивается уплотнитель конька. Коньковый уплотнитель должен иметь аэрационные отверстия для выхода воздуха, вентилирующего подкровельное пространство. Коньковая планка крепится к обрешётке. Саморезы вкручиваются в коньковую планку в местах расположения гребней волн листов металлочерепицы. Для крепления коньковой планки используются саморезы большей длины, чем для крепления листов металлочерепицы.

Толщину металла коньковой планки следует брать больше либо равной толщине металла листов металлочерепицы, но не менее 0,5 мм.

Листы металлочерепицы и все доборные элементы монтируются с лестницы для крыши. Можно устраивать отдельную лестницу для каждого ската; либо делать одну лестницу с которой обеспечивается доступ сразу на 2 ската; либо одну лестницу с доступом на 1 скат, но переносить её на другой скат по окончании работ на первом скате.

Утепление и обшивку стен, устройство полов, утепление крыши, внутреннюю отделку, прокладку инженерных коммуникаций и установку печи дровяного отопления необходимо производить по истечении года с момента окончания кровельных работ.
















































(обратно) (обратно) (обратно)

Оглавление

  • Нормативные ссылки
  • Введение
  • 1. Исходные данные
  •   1.1 Назначение здания
  •   1.2 Инженерно-геологические условия площадки строительства
  •   1.3 Климатические условия района строительства
  • 2 Архитектурно-строительные решения
  •   2.1 Технико-экономические показатели объекта строительства
  •   2.2 Объёмно-планировочные решения
  • 3 Конструктивные решения
  •   3.1 Фундаменты
  •     3.1.1 Вариант «А» – Фундамент на буронабивных сваях
  •     3.1.2 Вариант «Б» – Фундамент мелкого заложения с выполнением грунтовой подготовки
  •     3.1.3 Вариант «В» – Фундамент мелкого заложения с утеплением грунта
  •   3.2 Стены
  •   3.3 Перекрытия
  •   3.4 Крыша
  •     3.4.1 Стропильная система
  •     3.4.2 Обрешётка
  •     3.4.3 Фронтоны
  •   3.5 Окна и двери
  • 4 Технология производства работ
  •   4.1 Подготовка строительной площадки
  •   4.2 Фундаменты
  •     4.2.1 Земляные работы
  •     4.2.2 Грунтовая подготовка
  •     4.2.3 Опалубочные работы
  •     4.2.4 Армирование
  •     4.2.5 Бетонирование
  •     4.2.6 Гидроизоляция
  •   4.3 Стены
  •     4.3.1 Подготовительные работы
  •     4.3.2 Изготовление сруба и возведение стен
  •   4.4 Возведение крыши
  •     4.4.1 Стропильная система
  •     4.4.2 Обрешётка
  •     4.4.3 Кровля